Cardone Architektur + Interior Design GmbH

Bader Montres et Bijoux - 1989 

Bilder

arrow
arrow

 

Ausgangslage

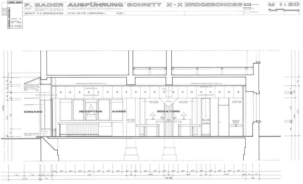
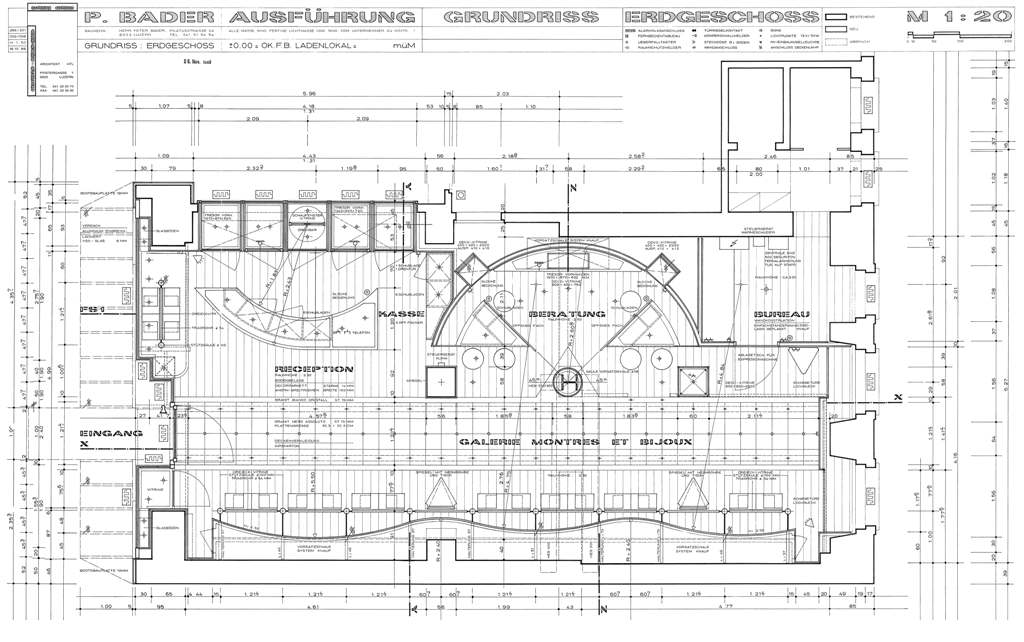
Der Juwelierladen, gelegen an der durch Passanten und Touristen stark frequentierten Hauptverkehrsachse Pilatusstrasse, soll vorwiegend junge, dynamische Kunden anziehen. Vom Designer-Schmuck für gehobene Ansprüche bis hin zur Swatch soll alles angeboten werden. Zudem soll der Laden die Möglichkeit bieten, Ausstellungen zu veranstalten. Aus der Kombination der Gegebenheiten und den Wünschen der Bauherrschaft, entstand die Laden-Konzeption „GALERIE MONTRES & BIJOUX“.

Konzept & Gestaltung     

Diese avantgardistische Lösung wird dem neuen Kaufverhalten der Konsumenten, auch im Schmuckgeschäft vollauf gerecht. Hier wird man, ohne Kaufzwang und „Schwellenangst“ zum unbelasteten „Herumschauen“ eingeladen.
Der Gestaltung kommt vor allem psychologisch eine sehr wichtige Bedeutung zu; da der Kunde sich frei bewegen soll, muss ihm auch die Wegführung visuell bewusst gemacht werden.

Auf der Achse des asymmetrisch angeordneten Eingangs zieht sich der schwarze, hochglanzpolierte Granit vom gedeckten Vorplatz auf einer Breite von 1.20m wie ein „Laufsteg“ hinein und durchschneidet, eingefasst von weissem Marmor, den rechtwinklig dazu verlegten, hellen Ahorn-Riemenparkett durch den ganzen Raum und teilt ihn in eine freie Zirkulationszone und eine intimere, ruhige Beratungszone. Damit diese auch räumlich zur Geltung kommen und gleichzeitig ihre Funktion unterstreichen, wurde die Beratungszone niedrig gehalten, die Ausstellungs- & Zirkulationszone hoch und der „Laufsteg“ bekam die schräge Ebene, welche sich aus der Höhendifferenz ergab.
Diese Ebene wurde bis 2.00m ins Trottoir hinaus geführt, um schon frühzeitig zum optischen Signal zu werden.

Ein Rohrgestell mit auswechselbaren Dreiecks-Vitrinen aus dem IMC-Programm von Rosenthal flankiert den „Laufsteg“ auf der schmalen Ausstellungszone in einer starren Regelmässigkeit. Sie wird aufgelockert durch die gewellte Wand hinter den Vitrinen, die wiederum das Zirkulieren andeuten soll.

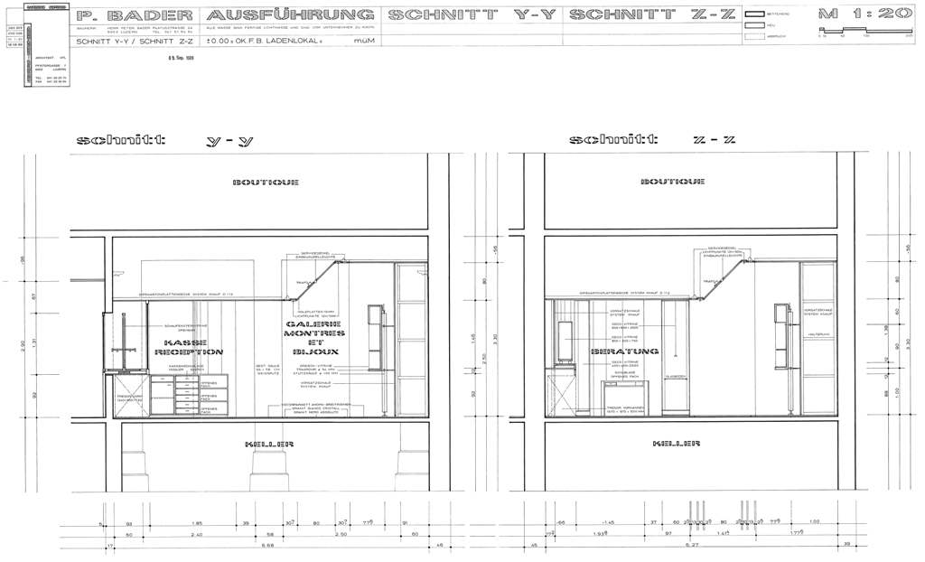
Die breitere Beratungszone gegenüber ist unterteilt in eine Rezeption und eine halbkreisförmige Beratungs-Nische, welche als Zentrum eine statisch bedingte, runde Säule hat. An zwei Tischen können sich die Kunden in ruhiger Atmosphäre beraten lassen. Als Abgrenzung zur Rezeption dient ein ebenfalls statischer bedingter Pfeiler, welcher verspiegelt wurde. Symmetrisch dazu bildet eine gleichgrosse Vitrine die Abgrenzung zum Office und zur Café-Nische. Auch die Rezeption mit ihrer geschwungenen „Bar“ und den Barhöckern dient sowohl dem Verkauf, als auch der Beratung.

Durch die transparente Gestaltung der Fassade und den fünf Vitrinen zur Passage soll auch sie den Eindruck von Ungezwungenheit vermitteln.

Aus Ausstellungsfläche dient nicht das Schaufenster, sondern ebenfalls Dreiecks-Vitrinen, welche ins Schaufenster reingestellt sind.

Ein schlichtes Vordach aus einer leichten Metall- & Glas-Konstruktion schützt die Fassade vor Witterungseinflüssen.

Farben-Konzept

Grundsätzlich wurde die Fassade und die Einrichtung in einem eleganten Anthrazit gehalten. Wände und Decken in schlichtem Weiss. Um einen Bezug zum Hauptgeschäft „Bader-Huus“ herzustellen, welches vorwiegend in Pink gehalten ist, bekam auch die schräge Ebene über dem „Laufsteg“, wie auch markante Teile in der Fassade, diese Farbe.

 

Pläne